Sonniges Baugrundstück 441m² und Bauplanung für 153m² Finca mit Meerblick, 3SZ, 3BZ, Pool & Zisterne
Grundstück zum Kauf in Llucmajor / Urbanització Ses Palmeres

offen

Beschreibung

Spektakulärer Meeresblick in ruhiger Lage im Süden von Mallorca.

Dieses sonnige 441 m² große Grundstück wird mit einem Bauprojekt verkauft.

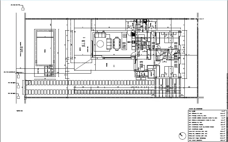
Mit einer Wohnfläche von 153m², verteilt auf 2 Etagen, könnte hier Ihr neues Traumdomizil entstehen.

Durch die Eingangstür gelangt man in den gemütlichen Eingangsbereich. Dieser führt auf der rechten Seite in zwei lichtdurchflutete Doppelschlafzimmer mit jeweils einem Bad en suite und Einbauschränken. Auf der linken Seite des Eingangsbereichs befindet sich ein weitläufiger Wohn-Essbereich mit offener Küche und großen Fenstern, von denen Sie einen herrlichen Blick auf den Garten haben. Von hier aus gelangen Sie auf die Terrasse. Neben der Terrasse befindet sich der separate Hauswirtschaftsraum.

Die Treppe im Eingangsbereich führt in das Obergeschoss. Hier liegt der Masterbedroom mit Bad en suite und eigener Dachterrasse mit traumhaftem Meerblick. Auf dieser können Sie die beeindruckenden Sonnenuntergänge bei einem Gläschen Vino „tinto“ mit Ihren Liebsten genießen. Ein anliegendes Ankleidezimmer und eine weitere Terrasse runden diese Etage ab und machen sie zu Ihrer privaten Wohlfühloase.

Beide Etagen werden über eine Fußbodenheizung verfügen.

Im wundervollen Garten sind ein Pool und eine Terrasse mit Veranda geplant. Somit können Sie an heißen Sommertagen den Schatten genießen und sich im Pool abkühlen. Zusätzlich bietet das Grundstück zwei überdachte Stellplätze und eine eigene Zisterne.

Alle wünschenswerte Versorgungen, wie z.B. Strom und Wasser, sind in der Straße vorhanden und der Anschluss entsprechend problemlos.

Für die Fertigstellung des Bauprojektes stehen Ihnen unsere Baupartner gerne zur Verfügung..

Diese einzigartige Immobilie ist ideal für Personen, die einen ruhigen Ort mit unvergleichlichem Blick auf das Meer suchen.

Vereinbaren Sie jetzt einen Termin mit Ihrem Makler.

Ausstattung

Genau hier laufen unsere Bauprofis zur Hochform auf. Wir planen Ihre Wohnträume bis ins kleinste Detail und orientieren uns dabei an der alten Bausubstanz und Ihrer Vorstellung. Und wenn Sie zwar Wünsche, aber noch keine konkrete Vorstellung haben, dann lassen Sie sich bei einem Besuch in einem unserer Wohnträume inspirieren. Oder besuchen Sie eine laufende Baustelle.

Natürlich übernehmen wir für Sie alles rund um Ihren Wohntraum. Bauplanung durch unseren eigenen Architekten, Kostenschätzung und Beratung zu Energie-Einsparung, alternativen Energien und Baustoffen. Baudurchführung durch unsere eigenen Teams bis zur finalen Bauabnahme.

Kleinere Änderungen inclusive.

home4you vermittelt, plant und verwaltet hauptsächlich preiswerte Immobilien mit historischem Charakter, die durch Renovierung wieder zu neuem Glanz erstrahlen.

home4you hat sich dafür auf preiswerte Bestandsimmobilien spezialisiert, die mit Umbau nach neuesten Standards zu persönlichen Traumobjekten werden, aber dennoch deutlich unter dem üblichen Marktwert liegen und genau hier liegt Ihr Gewinn.

Sie sparen bares Geld, wenn Sie sich selber nur ein paar Gedanken machen. Denn dort, wo sonst Immobiliengesellschaften Ihre Gewinne erzielen, liegt Ihr finanzieller Vorteil. Und nebenbei können Sie fast alles so gestalten, wie es in einer fertigen Immobilie später nicht mehr möglich wäre.

Das Team von home4you ist auf Wunsch während der Bauphase und auch danach Ihr Ansprechpartner, z.B. für Mieterabwicklung, Verwaltung und Abrechnungen.

Lage

Llucmajor ist eine belebte Kleintadt an der Süd-Ostküste von Mallorca, unweit der Gemeinden S´Estanyol und Sa Rapita.
Letztgenannte ist bekannt für den Traumstrand "Es Trenc" und ist nur etwa 10 km entfernt und ist damit bequem in rund 15 Minuten erreichbar.

In diesem Gebiet gibt es viel Vegetation, ein Teil davon ist geschützt, da es neben dem Meer das steilste der Insel ist. Etwa 3 km entfernt liegt Es Cap Blanc, die schönste Steilküste Mallorcas und bekannt für ihre Sonnenuntergänge.

Für Golfliebhaber ist der nur 14 km entfernte Golfplatz Son Antem, einer der besten der Insel, auf dem auch die meisten Turniere ausgetragen werden, leicht zu erreichen. Ebenfalls nur 5 km entfernt liegt der Golfplatz Maioris, einer der jüngsten Golfplätze der Insel.

Für Weinliebhaber gibt es nur wenige Kilometer entfernt zwei Weinkeller. Einer von ihnen gilt als einer der besten Weinkeller Mallorcas.
Llucmajor ist eine belebte Kleintadt an der Süd-Ostküste von Mallorca, unweit der Gemeinden S´Estanyol und Sa Rapita.
Letztgenannte ist bekannt für den Traumstrand "Es Trenc" und ist nur etwa 10 km entfernt und ist damit bequem in rund 15 Minuten erreichbar.

Sonstiges

Bei Interesse erfragen Sie bitte unser ausführliches Exposé über unser Büro. Sie bevorzugen ein klassisches Print-Exposé? Sprechen Sie uns an!

Gerne ermöglichen wir Ihnen einen ersten, eindrucksvollen Besichtigungstermin. Überzeugen Sie sich in entspannter Atmosphäre von der Exklusivität und Einzigartigkeit dieses Anwesens und lassen Sie die Eindrücke vor Ort in aller Ruhe wirken.
Ein wichtiger Hinweis zum sensiblen Thema "EU-DSGVO":

Wenn Sie uns Ihre Daten über ein Immobilienportal (z.B. immobilienscout24.de) übermitteln, so werden Ihre Daten lediglich für vier Wochen aufbewahrt, um den Exposéversand sowie eine mögliche Terminvereinbarung für eine Objektbesichtigung möglich zu machen. Nach Ablauf der vier Wochen werden Ihre Daten unwiderruflich gelöscht! Wir werden Ihnen weder neue Angebote noch einen nicht erwünschten Newsletter zukommen lassen.

Selbstverständlich können Sie Ihr Immobiliengesuch in unserer Datenbank unverbindlich und kostenfrei dauerhaft hinterlegen. Somit würden Sie in Zukunft durch uns ganz automatisch über neue Objekte informiert werden. Besuchen Sie hierzu bitte unsere eigene Homepage. Dort finden Sie im ´Footer´ den Link "Suchauftrag" bzw. Sie nutzen einfach folgenden Link: https://home4you.info

Das gesamteTeam von home4you Immobilien in Köln und auf Mallorca sagt Herzlichen Dank für Ihr Vertrauen!

Ansprechpartner

Rosemarie

Rosemarie Waldherr

  +49 (0) 221 -33 96 30 20
  0171 - 2773999

Kontakt aufnehmen

Grundstück zum Kauf

Kaufpreis 299.000 €
Adresse 07609 Llucmajor / Urbanització Ses Palmeres - Mallorca
Grundstücksfläche 441 m²
Objekt-Nr. 1483-23ES

Video

Energieausweis

Gültig bis
Energieausweis ohne, liegt zur Besichtigung vor

0200400+

Ausstattung

Anzahl Badezimmer 3
Bebaubar nach Länderspezifisch
Provisionshinweis Als Käufer bezahlen Sie bei uns keine Maklerprovision
Erschließung voll erschlossen
Haustiere erlaubt
Provisionspflichtig
verfügbar ab sofort
Vermarktungsstatus offen

Erfolg! Vielen Dank für Ihre Bewertung.

Fehler! Bitte füllen Sie alle Felder aus.