Neubau! Attraktive DHH mit PV-Anlage, Wärmepumpe, 171qm, exkl. Ausstattung, Eigenleistung möglich...
Haus zum Kauf in Königswinter
Beschreibung
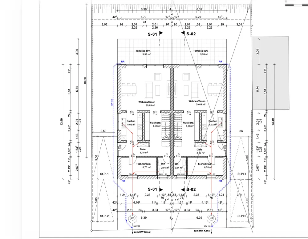
Zum Verkauf steht die linke Hälfte eines modern geplanten Doppelhauses in ruhiger Lage von Pleiserhohn. Mit einer Wohnfläche von ca. 171 m² bietet das Objekt ein überdurchschnittliches Platzangebot, das insbesondere auf die Bedürfnisse von Familien zugeschnitten ist. Das Grundstück umfasst ca. 360 m² und bietet Platz für zwei PKW-Stellplätze sowie einen Gartenbereich.
Die Wohnfläche verteilt sich auf drei Ebenen und ist wie folgt gegliedert:
Erdgeschoss: Zentraler Wohn- und Essbereich mit Zugang zu Terrasse und Garten, separate Küche, Gäste-WC, Eingangsbereich und ein funktionaler Hauswirtschaftsraum.
Obergeschoss: Drei Schlaf- bzw. Kinderzimmer, ein kleines Büro, Flur sowie ein Familienbad, ausgestattet mit Doppelwaschtisch, Badewanne, Dusche, WC und Fenster.
Dachstudio: Ein großzügiger, offen gehaltener Bereich, der individuell genutzt werden kann.
Option: Das Dachstudio bietet ausreichend Fläche für einen separaten Elternbereich. Die Installation eines zweiten Duschbads ist nach Absprache umsetzbar.
Ausstattung
Der Neubau erfolgt nach aktuellem energetischem Standard und umfasst eine hochwertige technische Ausstattung:
Heizung: Luft-Wasser-Wärmepumpe in Kombination mit Fußbodenheizung.
Energie: Photovoltaikanlage inklusive Batteriespeicher zur Reduzierung der Stromkosten.
Komfort: Elektrische Rollläden an den Fenstern.
Stellplätze: Zwei Außenstellplätze sind im Angebot enthalten.
Eigenleistungen und Gestaltungsmöglichkeiten:
Das Haus wird in einem Zustand übergeben, der dem Käufer Raum für Eigenleistung und individuelle Materialwahl lässt. Nicht im Angebotspreis enthalten sind: Maler- und Tapezierarbeiten, Bodenoberbeläge, Garten- und Außenanlagen.
Diese Gewerke sind vom Käufer in Eigenregie zu erbringen. Weitere Eigenleistungen am Bau sind grundsätzlich möglich, müssen jedoch zwingend im Vorfeld mit dem zuständigen Architekten abgestimmt werden. Dies bietet Bauherren die Option, die Erwerbskosten durch Eigenleistung zu senken.
Lage
Das Objekt befindet sich in Pleiserhohn, einem beschaulichen Ortsteil von Königswinter, unmittelbar an Feldern und dem Wald gelegen.
Versorgung: Das Zentrum von Oberpleis ist ca. 2 km entfernt. Dort befinden sich sämtliche Geschäfte des täglichen Bedarfs (Rewe, Aldi, Rossmann), Banken, Ärzte und Gastronomie sowie ein Freibad und Sportvereine.
Bildung: Grundschulen, Gesamtschule und Gymnasium sind in Oberpleis vorhanden; eine weitere Grundschule befindet sich im ca. 3 km entfernten Hennef-Söven.
Anbindung: Von Oberpleis besteht eine direkte Busverbindung nach Siegburg (ICE-Bahnhof) sowie nach Bonn und Königswinter/Oberdollendorf (Anschluss an das S-Bahn-Netz Richtung Köln).
Sonstiges
Ein wichtiger Hinweis zum sensiblen Thema "EU-DSGVO":
Wenn Sie uns Ihre Daten über ein Immobilienportal (z.B. immobilienscout24.de) übermitteln, so werden Ihre Daten lediglich für vier Wochen aufbewahrt, um den Exposéversand sowie eine mögliche Terminvereinbarung für eine Objektbesichtigung möglich zu machen. Nach Ablauf der vier Wochen werden Ihre Daten unwiderruflich gelöscht! Wir werden Ihnen weder neue Angebote noch einen nicht erwünschten Newsletter zukommen lassen.
Selbstverständlich können Sie Ihr Immobiliengesuch in unserer Datenbank unverbindlich und kostenfrei dauerhaft hinterlegen. Somit würden Sie in Zukunft durch uns ganz automatisch über neue Objekte informiert werden. Besuchen Sie hierzu bitte unsere eigene Homepage. Dort finden Sie im ´Footer´ den Link "Suchauftrag" bzw. Sie nutzen einfach folgenden Link: https://www.wind-immobilien.de/immobilien/suchauftrag. Vielen Dank!
Kontakt aufnehmen
Neubau! Attraktive DHH mit PV-Anlage, Wärmepumpe, 171qm, exkl. Ausstattung, Eigenleistung möglich...
Haus zum Kauf
| Kaufpreis 549.000 € |
| Adresse 53639 Königswinter |
| Wohnfläche 171 m² |
| Zimmer 6 |
| Grundstücksfläche 363 m² |
| Objekt-Nr. PS86_NB |
Energieverbrauchsausweis
| Endenergieverbrauch 55 kWh/(m²*a) |
| Befeuerungsart Elektro |
| Wesentlicher Energieträger LUFTWP |
| Baujahr (Energieausweis) 2026 |
| Gültig bis 11.03.2036 |
0200400+
Ausstattung
| Anzahl Badezimmer 1 |
| Anzahl Schlafzimmer 4 |
| Anzahl separate WCs 1 |
| Anzahl Terrassen 1 |
| Anzahl Zimmer 6 |
| Baujahr 2026 |
| Bauweise Massiv |
| Befeuerungsart Elektro |
| Gäste-WC |
| Kabel/Sat-TV |
| Provisionspflichtig |
| verfügbar ab nach Absprache |
| Vermarktungsstatus offen |
| Wasch/Trockenraum |
| Zustand Erstbezug |